-
Rank
4265.45坪
家事ラク動線を意識した奥様大満足の家
-
Rank
4331.75坪
家事ラク導線のバッチリ収納たくさんの家
-
Rank
4433.31坪
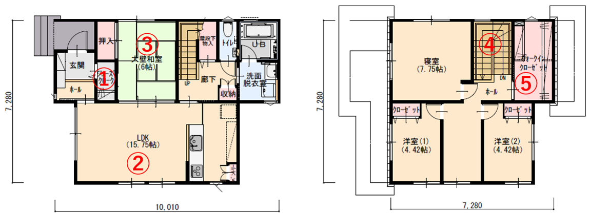
和室のある広々LDKの家
-
Rank
4628.05坪
回遊導線が計算されつくした家事ラクの家
-
Rank
4750.85坪
和室で憩いの時間を楽しむ家
-
Rank
4833.31坪
収納豊富パントリーで毎日の料理が楽しくなる家
-
Rank
4930.56坪
リビングに吹き抜けのある開放的な家
-
Rank
5132.81坪
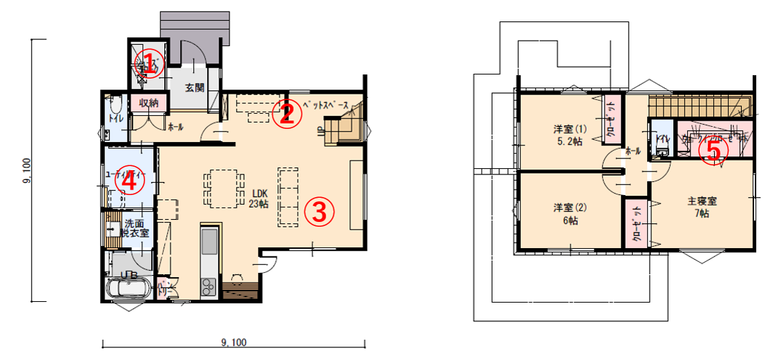
ピアノスペースやペットスペース完備のお子様満足の家
