- 
                        
Rank
13339.58坪
家事負担の軽減にこだわった2階建ての家
                                     - 
                        
Rank
13433.44坪
子どもの成長を支える二階建ての家
                                     - 
                        
Rank
13532.06坪
1階に寝室とウォークインクローゼットを採用した1階でも生活が完結できる家
                                     - 
                        
Rank
13634.48坪
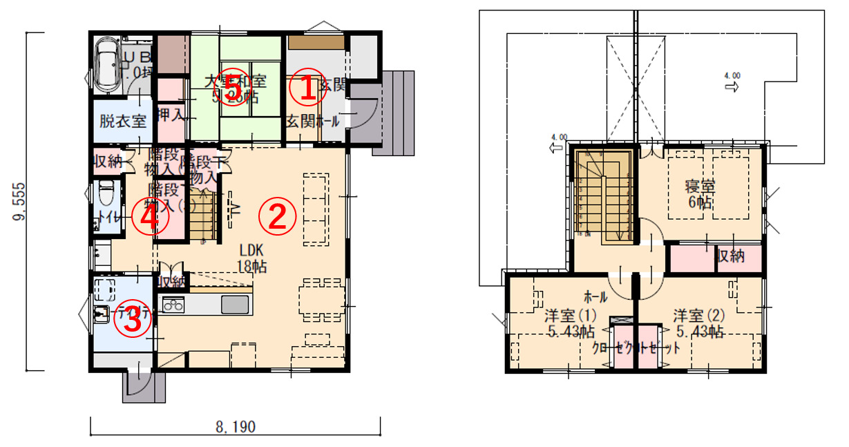
空間を上手に活用した階段下土間収納と各部屋収納でスッキリとした家
                                     - 
                        
Rank
13735.07坪
新生活様式の間取りを採用したお帰り洗面台に玄関収納もある家
                                     - 
                        
Rank
13834.57坪
一直線のLDKで家族とのコミュニケーションも捗り開放感もある家
                                     - 
                        
Rank
13933.25坪
アイランドキッチンと趣味スペースを採用した奥様過ごしやすい家
                                     - 
                        
Rank
14035.57坪
収納も家事ラクも開放感も叶えた贅沢な家
                                     
                
                                                    
                                                    
                                                        