-
Rank
14237.95坪
車好きにはたまらないインナーガレージ付きの家
-
Rank
14435.07坪
趣味スペースに書斎とアウトドアギア収納シューズクロークで趣味を愉しめる家
-
Rank
14537.20坪
書斎やスキップフロアなどこだわり満載の家
-
Rank
14636.08坪
家族専用の大容量ファミリークローゼットを1階に採用した家
-
Rank
14732.81坪
将来を考えた暮らしやすい二階建ての家
-
Rank
14836.41坪
家事ラク回遊動線と充実収納で暮らしやすさを追求した家
-
Rank
14939.20坪
スキップダウンLDKや小上がり和室に吹抜のある広々した家
-
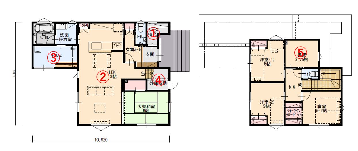
Rank
15032.12坪
広々LDKで書斎コーナーで1人の時間も家族の時間も楽しめる家
