-
Rank
15139.20坪
スキップフロアで家族を感じながらのテレワークが可能な家
-
Rank
15237.07坪
スムーズな導線にフレキシブル洋室でライフスタイルに合わせて変化する家
-
Rank
15335.32坪
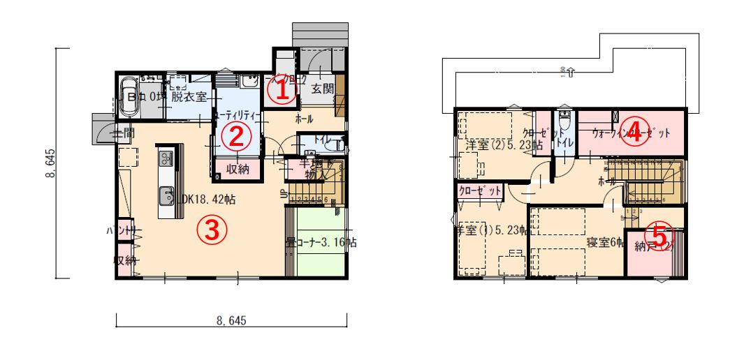
共働き夫婦でも忙しい毎日を効率的に過ごせる家
-
Rank
15429.56坪
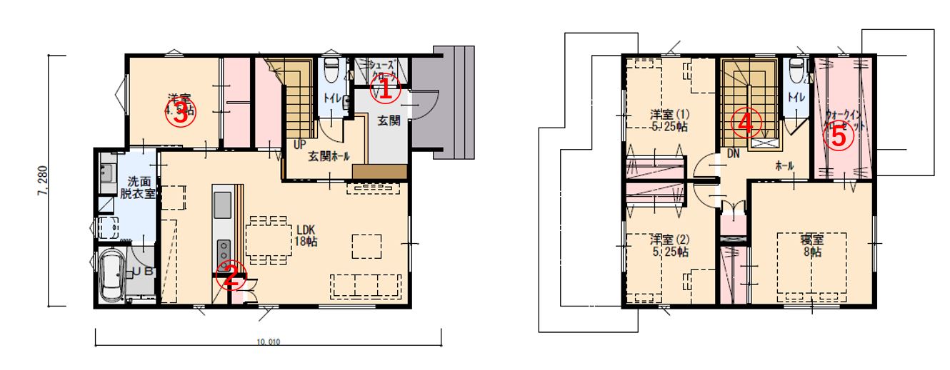
空間を活用して収納を充実させたコンパクトな家
-
Rank
15535.57坪
LDKが家族のお気に入りの場所になるスキップダウンリビングのある家
-
Rank
15637.10坪
洗う・干す・たたむ・収納全て叶う暮らしやすさを追求した家
-
Rank
15735.23坪
アウトドアギアも収納出来るアウトドアライフを楽める家
-
Rank
15835.32坪
スキップフロアとスキップ和室が空間の広がりを演出する大空間の家
